热能与动力综合实验室简介
【发布时间:2020-04-07 17:03:53 】 【来源: 】 【阅读次数:


一、实验室建设目的与必要性

能源与动力工程专业旨在培养德、智、体全面发展,具有创新、创造、创业理念和能力,具备能源生产、转化、利用与动力系统研发基本理论和应用技术,具有一定的沟通与交流能力和团队合作能力,以及具备节能减排理念,能够从事能源动力、人工环境、新能源研究开发、优化设计、先进制造、智能控制、应用管理等工作的复合型高级工程技术人才。

依据学院发展规划和太阳集团官网本科培养方案,我院升入本科院校所具备的条件之一就是实验室数量必须满足本科教学课程和学生课程设计的需要。培养应用型专业技术人才的关键在于提高学生的动手实践能力和创新能力,只有建设完善的现代化专业实验室,才能真正解决这样的问题。

根据《太阳集团官网人才培养方案》对实验课程的要求,构建热能与动力综合实验室。

二、可承担实验内容

热能与动力综合实验室,配备实验员1名,可以满足能源与动力工程专业本科生《锅炉原理》、《汽轮机原理》、《热能与动力测试技术》、《换热器原理与设计》、《供热工程》等课程的实验教学要求,课程具体信息如表1所示。

表1课程开设情况

序号

课程名称

总学时

实验学时

1

锅炉原理

64

8

2

汽轮机原理

64

8

3

热能与动力测试技术

40

8

4

换热器原理与设计

32

4

5

供热工程

32

4

其中,过热器流量分配实验装置针对过热器并联支管在多种连接方式下的流量分配规律,通过压差板直观的显示出来,便于学生直观的了解过热器的原理、结构以及性能特点,验证过热器联箱的Z形连接管屏中的流量分配特性、U形连接管屏中的流量分配特性和多管连接管屏中的流量分配特性。直流循环锅炉实验装置可让学生观察直流锅炉的运行情况,加深对直流锅炉的感性认识;观察直流锅炉垂直管屏中停滞、倒流现象,了解直流锅炉的热偏差特性;测试直流锅炉的水动力特性,了解直流锅炉的水动力不稳定特性。

热电阻校验装置、热电偶校验仪、压力表校验装置课可使学生了解热电偶的安装、组成,热电偶的工作原理及热电偶的测温系统及基本设备的结构与性能;掌握热电偶的调校方法,学习压力表的静态标定方法,了解压力表静态校准设备的工作原理和使用方法,掌握非线性误差的计算方法。

换热器性能综合测试实验装置可完成套管式换热器性能测试、螺旋板式换热器性能测试、列管式换热器性能测试、钎焊板式换热器性能测试、换热器顺逆流综合性能测试等实验。使学生了解热管换热器实验台的工作原理;熟悉热管换热器实验台的使用方法;运用所学换热器及传热学知识,结合该热管换热器实验台,设计热管换热量Q和传热系数K的测试方案;根据设计方案,完成换热量Q和传热系数K的测试计算;对实验结果进行误差分析。

管网水力工况实验装置可使学生了解不同水力工况下热网水压图的变化情况,巩固热水网路水力工况计算的基本原理;了解和掌握热网水力工况分析方法,验证热网水压图的水力工况的理论。

三、实验室相关设施条件

该实验室设备清单如下,设备总资产119.214万元。

1.装备建设

序号

名称

技术参数

数量

备注

1

过热器流量分配实验装置

一、产品概述

过热器并联各管流量不均匀性和沿炉膛宽度的吸热不均匀性,是导致局部超温爆管的两个主要因素。本装置针对过热器并联支管在多种连接方式下的流量分配规律,通过压差板直观的显示出来,便于学生直观的了解疏水器的原理、结构以及性能特点。

二、系统特点

1.本装置对过热器并联支管在多种联接方式下的对比测定,研究其流量的分配规律。

2.采用压差板显示压差,直观了然。

3.装置配有四个带刹车万向轮,移动方便且固定牢固。

三、技术性能

1.输入电源:单相三线AC220V±10% 50Hz

2.工作环境:温度0℃~+40℃ 相对湿度<85%(25℃)海拔<4000m

3.装置容量:2kVA

4.安全保护:具有接地保护、漏电保护功能,安全符合国家标准

四、系统配置

本实验装置由不锈钢框架、实验对象、测定显示装置等构成。

五、实验项目

1. 过热器并联管道各支管流量分布

2. 分析过热器引起超温爆管的原因

3


2

直流循环锅炉实验装置

一、产品概述

直流锅炉是指靠给水泵压力,使给水顺序通过省煤器、蒸发受热面(水冷壁)、过热器并全部变为过热水蒸气的锅炉。在省煤器受热面、蒸发受热面、和过热器受热面之间没有固定的分界点,随锅炉负荷的变动而变动,故在其蒸发受热面中有时会出现流动不稳定和脉动等问题,其流动的无自平衡特性又容易造成系统的热偏差。本实验装置是一种直流锅炉原理及现象的演示装置,直观显示直流锅炉的水动力不稳定性和热偏差特性,适合《锅炉原理》等相关课程的实验教学。

二、产品特点

1.可移动的操作平台(配有万向轮),操作简单,移动方便,结构安全可靠。

2.三组透明垂直排管对直流锅炉进行模拟,可直观观察实验现象。

3.可调节的操作框架,能够演示垂直上升和倾斜上升多种工况的实验特性。

4.红外液晶显示屏,动画模拟直流锅炉运行特性,实时显示直流锅炉压差、流量、温度等实验数据。

5.具有接地保护、过载保护、漏电保护功能,可对人身及设备进行有效保护。

三、技术性能

1.输入电源:三相AC380V±10% 50Hz

2.工作环境:温度-10℃~+40℃ 相对湿度<85%(25℃) 海拔<4000m

3.装置容量:<10kW

4.温度范围:<150℃

5.外形尺寸:1740mm×760mm×2202mm

四、系统配置

装置主要由框架支撑、直流循环锅炉演示模型、工质及冷却水系统、测量显示装置及控制系统等组成。

五、实验项目

1.观察直流锅炉的运行情况,加深对直流锅炉的感性认识。

2.观察直流锅炉垂直管屏中停滞、倒流现象,了解直流锅炉的热偏差特性。

3.测试直流锅炉的水动力特性,了解直流锅炉的水动力不稳定特性。

1


3

热电阻校验装置

一、产品概述

本实验装置专供工作用热电阻的校验,适用于铂电阻和铜电阻等热电阻的校验和分度。适合《热能与动力测试技术》课程的实验教学。

二、系统特点

1.本装置具有较先进的电测系统和控温系统,检定数据可靠,性能稳定

2.功能齐全,配置灵活,可检定铂电阻和铜电阻,以及铜——康铜热电偶的校正

3.移动方便,装置配有四个带刹车万向轮,移动方便且固定牢固

4.系统采用标准水银温度计作为标准温度计

5.系统可实现热电阻温度显示

三、技术性能

1. 输入电源:单相AC220V±10% 50Hz

2. 工作环境:温度0℃~+40℃ 相对湿度<85%(25℃)海拔<4000m

3. 装置容量:4kVA

4. 检定温度范围:-20~100℃

5. 检定热电阻种类:铂电阻和铜电阻以及铜——康铜热电偶的校正

6. 安全保护:具有接地保护、漏电保护功能,安全符合国家标准

四、系统配置

本实验装置由不锈钢台架、电测系统与控温系统、标准铂电阻温度计、恒温系统、仪表显示系统等构成。

五、实验项目

1. 热电阻的校验

4


4

电偶校验装置

一、产品概述

本仪器专供工作用热电偶的校验,适用于镍铬-镍硅(K)、镍铬硅-镍硅(N)、镍铬-铜镍(康铜)(E)等热电偶的校验和分度。适合《热能与动力测试技术》课程的实验教学。

二、系统特点

1.本仪器具有较先进的控温系统,检定数据可靠,性能稳定

2.校验采用比较法,即利用镍铬—镍硅热电偶和被校热电偶直接比较方法进行检定和分度

3.功能齐全,配置灵活。可检定多种分度号的热电偶,检测温度点可任意设定

三、技术性能

1.输入电源:单相AC220V±10% 50Hz

2.工作环境:温度-10℃~+40℃相对湿度<85%(25℃)海拔<4000m

3.装置容量:<2kVA

4.检定温度范围:热电偶100℃~600℃

5.检定热电偶:工作用热电偶:K、E、J、N、T型

6.外形尺寸:450mm×300mm×500mm

7.安全保护:具有接地保护、漏电保护功能,安全符合国家标准

四、系统组成

本实验装置由实验台本体与电测系统等构成

五、实验项目

1.热电偶的校验

4


5

压力表校验装置

一、产品概述

本装置采用活塞式压力计作为压力发生器,同时利用其砝码标示作为标准压力(也可安装标准压力表进行显示)。通过活塞式压力计逐点给被校压力表提供压力,将对应点进行记录,对记录数据计算分析,完成压力表的校验。适合《热能与动力测试技术》课程的实验教学。

二、产品特点

1.结构性强 产品配有结构坚固且方便移动的操作平台

2.功能性强 可以实现压力表和压力变送器的校验

三、系统组成

本装置主要由实验桌,活塞式压力计,压力变送器、标准压力表、普通压力表、电源控制箱、压力显示仪表、开关及指示灯等组成。

四、实验项目

1. 校验工业用压力表

2. 校验压力变送器

3. 掌握活塞式压力计的使用方法

4


6

管网水力工况实验装置

一、产品概述

本实验装置可模拟热水管网水力工况。可根据各种实验情况分别绘制水压图,使学生直观地了解热网水压图的变化情况,从而加深对课堂所讲授内容的理解。它为建筑环境与设备工程专业学生未来从事的工程设计、施工、运行管理、工程监理等方面工作奠定了基础。适合《供热工程》课程的实验教学。

二、产品特点

1. 系统采用敞开式设计,将控制系统、管路系统直接展现出来,器件贴有名称标识,学生可直观认识各种工业现场元器件及了解系统的工作流程。利用双管热网水压图实验装置进行若干种工况变化的实验,学生能够直观地了解水压图随水力工况改变的变化情况。

2.通过调节每个模拟用户端阀门,模拟各种水力工作情况(管路各点及用户的压力)发生变化。可以使学生熟悉热网水力工况的分析和计算,进而巩固和验证课堂所学水压图的相关知识,加深课堂理论教学的效果。

3.采用单管水平跨越式,既可以调节整个管网的流量,也可以对单个用户的流量进行调节,这样有利于模拟多种工况。通过关闭相应的阀门,改变系统中的模拟用户数量,测试出非正常工况下管网水力工况的水压图。

三、技术性能

1.输入电源:单相AC220V±10% 50Hz

2.工作环境:温度-10℃~+40℃ 相对湿度<85%(25℃)海拔<4000m

3.系统容量:<0.3kA

4.安全保护:具有电流型漏电保护、接地保护,安全符合国家标准

5.外形尺寸:2125mm×900mm×2650mm

四、系统配置

实验装置主要是由不锈钢框架、实验对象、测量仪器及电源控制系统等组成。

五、实验项目

1.管网水力工况实验台的组成与使用

2.正常情况下水力工况水压图的描绘

3.非正常情况下水力工况水压图的描绘

4


7

换热器性能综合测试实验装置

一、 产品概述

目前我国传热元件的结构形式繁多,其换热性能差异较大,在合理选用和设计换热器的过程中,传热系数是度量其性能好坏的重要指标。本装置以应用较为广泛的间壁式换热器(共有套管式换热器、螺旋板式换热器、列管式换热器和钎焊板式换热器四种)为实验对象,可完成其性能测试实验。适合《工程热力学》、《传热学》、《热工学》等相关课程的实验教学。

二、 系统特点

1.采用四种不同结构的换热器(分别为套管式换热器、螺旋板式换热器、列管式换热器和钎焊板式换热器)进行性能测量。

2.实验装置可测定换热器总的传热系数、对数传热温差和热平衡误差等,并能根据不同的换热器对传热情况和性能进行比较分析。

3.实验装置采用工业现场的真实换热器部件,与实际应用接轨。

三、技术性能

1. 输入电源:三相四线(三相五线)AC380V±10% 50Hz

2. 工作环境:温度-10℃~+40℃ 相对湿度<85%(25℃)海拔<4000m

3. 装置容量:<5.0kVA

4. 套管式换热器:换热面积0.14m2,材质:碳钢制作,接口尺寸:G3/4″外螺纹,外形尺寸:直径×长度=Φ114mm×600mm

5. 螺旋板式换热器:换热面积1m2,材质:碳钢制作,接口尺寸:G3/4″外螺纹,外形尺寸:直径×高度=Φ300mm×200mm

6. 列管式换热器:换热面积0.5m2,换热管:紫铜螺纹管,接口尺寸:管程为R3/4″内螺纹,R1″内螺纹,外形尺寸:直径×长度=Φ89mm×454mm

7. 钎焊板式换热器:总换热面积0.144m2,板片材质:304不锈钢,接口尺寸:R1/2″内螺纹,外形尺寸:宽×高×厚=73mm×191 mm×34mm

8. 涡轮流量计:0.25~1.2m³/h,电源24V,温度-20~120℃,输出信号4~20mA,数量:2台

9. 热水泵:量程:8L/min,电源:220V,扬程:8m,功率:90W,数量:2台

10. 智能温度调节仪:包括三种,分别为一路、两路和四路显示,均配备有光电隔离的RS485通讯接口,采用特定的通讯协议

11. 电加热器总功率:<4kW

12. 安全保护:具有接地保护、漏电保护功能,安全符合国家标准

13. 外形尺寸:1800 mm×650 mm×1500mm

四、系统配置

系统主要是由实验台、实验对象、电源控制模块、温度检测模块及信号采集系统等组成。

五、实验项目

1.套管式换热器性能测试

2.螺旋板式换热器性能测试

3.列管式换热器性能测试

4.钎焊板式换热器性能测试

5.换热器顺逆流综合性能测试

4


8

转子振动模拟实验台

一、产品概述

转子振动试验台是一种用来模拟旋转机械振动的试验装置。主要用于实验室验证柔(挠)性转子的强迫振动和自激振动特性。它能有效地再现大型旋转机械所产生的多种振动现象。通过不同的选择改变转子速度、刚度、质量不平衡、轴的摩擦或冲击条件以及联轴节的型式来模拟机器的运行状态,由配置的检测仪表来观察和记录其振动特性。

转子振动试验台配套振动分析仪主要用于测量和分析各种工业领域中的大型旋转机械的振动,并能对所测量的值进行存储及回放。

二、基本配置

1.模拟台座(带直流电机),中心轴长320mm,长轴长500mm;

2.滑动轴承座、电涡流位移传感器支架、摩擦(限幅)螺钉支架、转子I、转子II、柔性联轴节、刚性联轴节等。

三、技术指标

1.信号输入:振动信号可配接磁电式速度传感器或电涡流位移传感器

2.测量范围

转速范围:300~12000转/分

振幅范围:位移:0~1000μm(峰-峰值)

速度:0~100.0mm/s(有效值)

相位:0~360°

3.频率响应:10Hz~1KHz

3


9

氮气减压阀

输入压力:15MPA

调节范围:0-0.6MPA

公称流量40m3/h

输入螺纹:氮气钢瓶专用接口G5/8

配置压力量程:输入0-25MPA,输出:0-1MPA

0.032


10

空气减压阀

输入压力15MPA

调节范围0.05-1Mpa

输入接口:国标空气钢瓶专用接口G5/8

压力表量程:输入0-25MPA,输出:0-1MPA

0.032


合计


2.配套条件建设

序号

建设内容

技术参数

数量

备 注



1

电子讲台

讲台: 1.2米两侧分拉;投影机: 3500流明,3LCD,对比度:10000:1;1.2X变焦比;色彩数目:10.7亿色;带高清HDMI接口;

视频展示台:200万像素;图像传感器:≥1/3英寸;清晰度:≥750线;变焦:整机放大倍数≥220倍;全方位对焦速度少于1秒、镜头可330度垂直转动拍摄;成像画面更清晰,画面色彩更自然,稳定性好; 多种分辨率切换:XGA、SXGA、720P、WXGA、1080P;支持图像特技:正负片、冻结、远程遥控器可实现旋转(90、180、270)、镜像、文本图像切换、同屏对比、标题;遥控器不少于32个快捷按键可远程操控,遥控器隐藏在展台内部可操作展台功能、方便收藏与远程操控。图像储存≥32张,电脑通过RS232串行接口运用软件实现投影机开关机控制功能。断电直通功能;展台在关闭时可通过展台实现电脑与投影机的信号直连。展台接口:VGA 2进2出、1组S端子、1组DC 5V;Video 1进1出、Audio 3进1出、1组MIC端子、1组RS232接口、1组USB接口;展台内部需配有2个以上红外接收器;控制面板简单易用,机身按键小于9个、独有可分离式键盘方便教学操作。采用DC 5V供电,整机功率小于6W,节能环保;展台枝臂需采用ABS材料耐磨损防污渍、阻尼式臂杆可在任意角度停留。

展台收纳后尺寸≤360x331x91mm净重≤2.5kg方便放置展台。中控:一体化中控系统,全金属外壳,按键图标采用苹果风格象形平面图标,上下课按键和别的按键采用不同颜色,方便老师辨认,操作简单。具有“开门即用、关门即走”功能,一键通,同步切换音视频。具有可靠的投影机电源管理功能。一键上课下课,上课投影开,屏幕降,电脑开机。下课投影关,屏幕升,电脑关机。

中控带有计算机开启关闭控制接口。投影机屏幕可独立开关控制。采用RS232/IR方法对投影机进行控制,带有投影机保护器,检测投影机灯泡的工作情况,并且自动延时关机,保护投影机寿命。投影机关机延时散热时间1-30分钟可调,解决大型投影机散热时间较长问题。面板带有计算机重启按键。当计算机死机无法操作时,直接操作中控面板就可以完成电脑重启。支持手机、平板电脑无线控制。

面板覆盖绝缘材料,防尘防水防静电。按键采用金属按键,使用寿命高达10万次。面板前置220V电源接口、话筒接口、VGA接口、音视频接口、HDMI接口、2组USB及网络接口。音量调节采用按键音量增减方式,支持投影机高清HDMI接口的一键切换。当学校多媒体教室构建一定数量以后,需要全部升级为网络化管理,中控机可升级为网络中控。

面板按键小于等于12个,按键指示灯10个。VGA 3*2,视频3*2,音频4*2,中控功耗小于等于10W,可控220V电源3路,电源输出功率2200W.开孔尺寸:214MM*94MM;

电动幕:幕布类型:电动幕;幕布材质:玻珠;对角线:100英寸;幕布比例:4:3;增益:2.8倍;

音响:集成合并式音频功率放大器、高保真无线数字话筒、音箱为一体的综合扩音系统。特有一组线形音源输入,一路数字无线话筒,一路有线话筒输入(插口自带环保电源),及一组功率输出。能够对话筒音调、音量,音乐音量独立调节。

数字无线话筒采用DSP自动搜频功能,并锁定地址码,确保同频无干扰。采用聚合物锂电池供电,一次充电可连续使用10小时以上;麦克风传感器及机壳一体化设计(也可以外接领夹及头戴话筒和外接音频输入);内置音量调节器,可根据需要调节无线发射器的音量大小;无输入信号时发射器自动关机,避免无关机造成电池电量耗尽;工作状态、电池欠压指示可靠耐用;话筒外观独特空腔设计,能够有效抑制话筒啸叫的产生。6.5寸全域单元,输出功率:2×30W/8欧,外配钢网保护;美观耐用,配万向安装吊架。

终端显示器:I5/4G/500G/22寸;

1



2

圆凳

防静电凳子椅子可升降圆凳实验室专用:XLD-4014A |可调高度范围:445-|表面电阻率:6-9

50



3

动力配电柜

额定电压:380VAC 3~;额定绝缘电压:660VAC 3~;额定频率:50HZ;额定电流:主母线:10~400A,额定峰值耐受电流:17KA;额定短时耐受电流icw:10KA/1S。柜体高度:2200mm;宽度:600mm;厚度:500mm;防护等级:IP30。配一个总电流200A空气开关,10个分电流32A空气开关

2



4

三相稳压输出源(50kva)

容量:50kva;交流输入:相位:三相;电压285-495V;频率30-70HZ;交流输出:相位三相四线;电压380V±1%;;频率50HZ;电路方式:IGBT/PWM脉波宽度调变方式;频率稳定度:≤±0.01%;电压稳压率≤1%;负载稳定度≤1%;波形失真度≤3%;功率因数≥85%;反应时间最大值2Ms;过载能力:110-150%30s,150-200%10ms;指示/解析度:数位频率表解析度0.1Hz;数位电压表解析度0.1V;数位电流表解析度0.1A;数位功率表解析度0.1W;保护装置:输入无熔丝开关,输出无熔丝开关,电子电路快速侦测过电压,过电流,过载,过高温及短路并自动跳脱保护及告警装置.绝缘电抗500Vdc 20MΩ以上;耐压绝缘1800Vac/5Ma/1分钟;冷却装置强制风扇制冷.

2



5

壁挂式空调

功能:冷暖型

制冷量: 3.5KW

制热量:3.6KW

额定电压: 220V

额定频率:50HZ

额定电流:4.1A

最大输入电流:6.9A

最大输入功率:1.28 KW

循环风量:560 立方/小时

制冷剂注入量:R22 /1.2KG

室内/外机 外型尺寸宽*高*深(MM):

1250*290*219 / 755*540*254

2



6

实验室防尘布

加密,深灰色,3m×5m

5



7

实验桌

尺寸:1500*750*800

材质:18mm E1级三聚氰胺饰面刨花板、PVC防水处理封边条

颜色:蓝灰

2



8

档案柜

采用优质0.6厚冷轧钢板,表面采用高压静电喷塑热固性粉末经九工位前处理。洗脱脂、除锈、磷化、钝化,粉末喷涂,颜色为亚光灰色。采用望通品牌锁具铝合金扣手产品外表美观,平整,易维护

10




合计



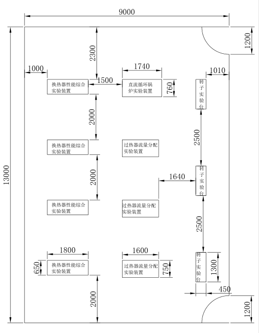
3)实验室布局

实验室布局如图1和图2所示,计划构建13m*9m=107m2大小的两间房。

图1实验室一布置图

图2实验室二布置图


[关闭本页]